NEWS CENTER
媒体新闻
让图纸“站”起来——维尔利运用BIM技术为环保工程赋能
发布日期:2021-11-03 浏览次数:29

近日,维尔利环保集团承接的广州市第七资源热力电厂二期从化项目BIM施工图在2021“SMART BIM”智建BIM大赛上荣获设计组一等奖佳绩,为集团迈入三维设计阶段打开良好局面。



01
发展背景



undefined


传统CAD技术基于二维平面排布设备、管道、桥架,受制于设计人员、施工人员空间想象力不足、经验水平不一等主观因素。实际施工过程中,易出现管线碰撞、布局不美观等问题,造成返工修改、材料浪费等情况。


随着互联网、大数据、BIM技术的飞速发展,对项目施工图纸进行三维描述和表达的数据基础、技术条件已经具备。以BIM技术为支点,结合数据平台,助推项目施工过程直观化、精准化、高效化,是今后环保工程发展的新思路。



02
项目概况



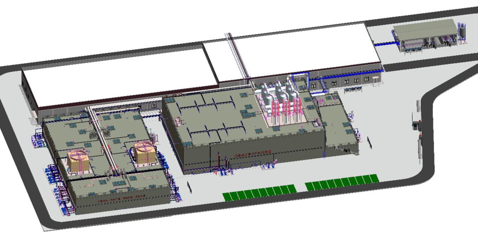
undefined

维尔利环保集团于2019年承接了广州环保投资集团有限公司的广州市第七资源热力电厂二期从化项目,该项目渗滤液处理站设计规模为900 m³/d(其中渗滤液720m³/d,低浓度生产废水180m³/d)。渗滤液处理工艺采用“预处理+厌氧+外置MBR(二级A/O)+NF+RO”,低浓度废水与渗滤液厌氧出水混合后进入后续生化处理、膜深度处理。NF浓缩液采用两级物料膜处理工艺,RO浓缩液采用化学除硬+管式软化膜+高压膜处理工艺,处理后出水达到《城市污水再生利用工业用水水质标准(GB/T19923-2005)》中的敞开式循环冷却水补充水标准后回用。


集团以该项目为起点,启用BIM技术进行三维施工图设计,开启前端设计由二维向三维转型的新征程。



03
优势体现



undefined

(1)管道布局优化:BIM软件自带管道碰撞测试性能,绘制过程中可以及时调整管道布局,保证管线布置合理性,克服二维设计中出现的管线碰撞问题,管道布局得到很大程度优化。


(2)直观化:BIM三维图纸将设备、管道、阀门等工程组成要素以具象化的方式呈现,相对二维平面表达更为清晰直观。


(3)精细化:BIM出图可一键生成工程量清单、各视角剖面图、轴测图,突破传统CAD出图工程量统计粗略、剖面图纸粗糙的困境,项目出图质量得到大幅提升,项目从设计到安装施工过程对接更加精细化,达到“设计即落地”的效果。


(4)高效化:工程量清单的精准化将有效避免材料采买过剩或缺失的情况,提高了前端采购工作效率。同时,三维呈现能更加全面地表达设计意图,可以减少大量的设计变更,有利于提高项目实施效率,形成每一个施工人员“找得快,看得懂,快施工”的良好局面。


(5)成本管控:工作高效化意味着人工成本、时间成本得到节省,同时,材料统计的准确性意味着采购成本得到节省。因此,三维设计对强化项目的安装成本管控工作具有建设性作用。对于项目管理者而言,能够做到心中有数,掌握全局,有效管控成本。



04
意义





undefined
undefined
undefined
undefined



对于项目实施而言,以广州市第七资源热力电厂二期从化项目为例,在项目安装阶段,三维施工图纸减少了现场施工人员辨图、识图的时间,节省时间成本、提高施工效率。


对于部门发展而言,从二维设计向三维设计转型是大势所趋,最终实现全员直接利用BIM软件进行正向设计的目标,替代传统的二维设计表达,对设计人员自身能力是一次颠覆性的提升,继而形成设计部门整体水平提升的向好局面。


对于企业发展而言,BIM三维设计对项目成本管控工作具有很大帮助性。而强化成本管理、降低成本是环保工程公司继续发展必须重视的问题,抓住它就可以带动全局,在环保市场才会更具竞争力。


对于行业发展而言,运维管理是BIM技术最具潜力的发展方向。以BIM技术为手段录入项目各要素的基本信息,结合互联网、大数据创建智慧平台,在项目后期运维阶段能够有效帮助运维人员对现场的建筑、设备、管道等组成要素进行维护和改造,逐步改善二维设计时代信息不足、信息缺失导致运维管理困难的痛点,这是今后BIM技术值得关注和拓展的价值所在。


从2020年开始,集团迅速推进BIM三维设计团队建设工作,邀请专业老师对集团设计人员进行BIM软件操作培训,逐渐形成一批具有三维设计能力的BIM工程师团队,由点及面、以少带多,最终实现全员进行三维设计的转型,这是集团在技术上的一次进步。


未来,BIM三维技术将持续释放创造力,我们也期待,BIM与环保行业碰撞出更多激动人心的、具有历史革新性的火花。